MTAC | Centro Humanístico La Puebla de Alfiden
Equipamiento Cultural
Localización | La Puebla de Alfindén (Zaragoza)
Tipología | Equipamiento cultural
Año de Proyecto | 2008
Estado | Proyecto (concurso)
Superficie | 2.642 m2
Proyecto | MTAC Arquitectura
Cliente | Ayuntamiento de La Puebla de Alfindén
El solar objeto de este proyecto se ubica en un enclave de gran relevancia dentro del municipio de La Puebla de Alfindén. Rodeado de edificaciones emblemáticas como el Ayuntamiento y la Iglesia Parroquial de la Asunción, el entorno se caracteriza por una notable coherencia arquitectónica, definida por múltiples ejemplos de construcción tradicional aragonesa.
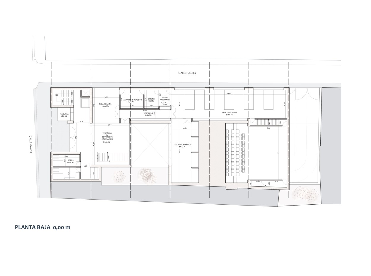
De forma sensiblemente rectangular, el solar se encuentra en una posición estratégica, en la esquina entre las calles Mayor y Fuertes. Además de sus dos fachadas principales, limita con varias construcciones colindantes, lo que ha exigido, en el caso de Calle Mayor 21, la creación de un patio que respete las aperturas preexistentes.
La propuesta arquitectónica busca dotar al futuro Centro Humanístico de una presencia sólida y singular, a la altura del papel emblemático que desempeñará en la vida cultural del municipio. Esta fuerza visual, sin embargo, no está reñida con la integración urbana, que se logra mediante: el uso de materiales tradicionales de la zona, como el ladrillo, la incorporación de elementos compositivos característicos, como aleros pronunciados y grandes paños de fábrica de ladrillo y el uso de una escala cuidadosamente ajustada al contexto urbano circundante.
En particular, la fachada de la Calle Fuertes —por su considerable longitud— se ha fragmentado en volúmenes de menor escala, generando ritmo y movimiento visual que dialogan armónicamente con el tejido urbano existente.
El programa funcional se organiza en torno a tres grandes áreas: la biblioteca municipal, el centro humanístico y las salas de exposiciones. Cada una de estas zonas puede operar de forma independiente, facilitando una gestión eficiente y flexible. El auditorio, por su parte, ha sido diseñado para permitir tanto un uso conjunto con el centro humanístico como un funcionamiento autónomo.
El acceso principal se realiza desde la Calle Mayor, a través de un espacio de distribución amplio y luminoso, conformado por dos áreas de doble altura que estructuran la composición del edificio y optimizan el control y la atención al público con un personal mínimo.
Finalmente, un acceso desde la Calle Fuertes facilita la entrada de vehículos a la zona de carga y descarga en el Sótano 1, así como al aparcamiento ubicado en el Sótano 2.
Datos de Contacto
Dirección
Calle Zabaleta nº 32. 28002 Madrid
arquitectura@mtac.es
Teléfonos
910 600 518



